+359 88 777 09 00

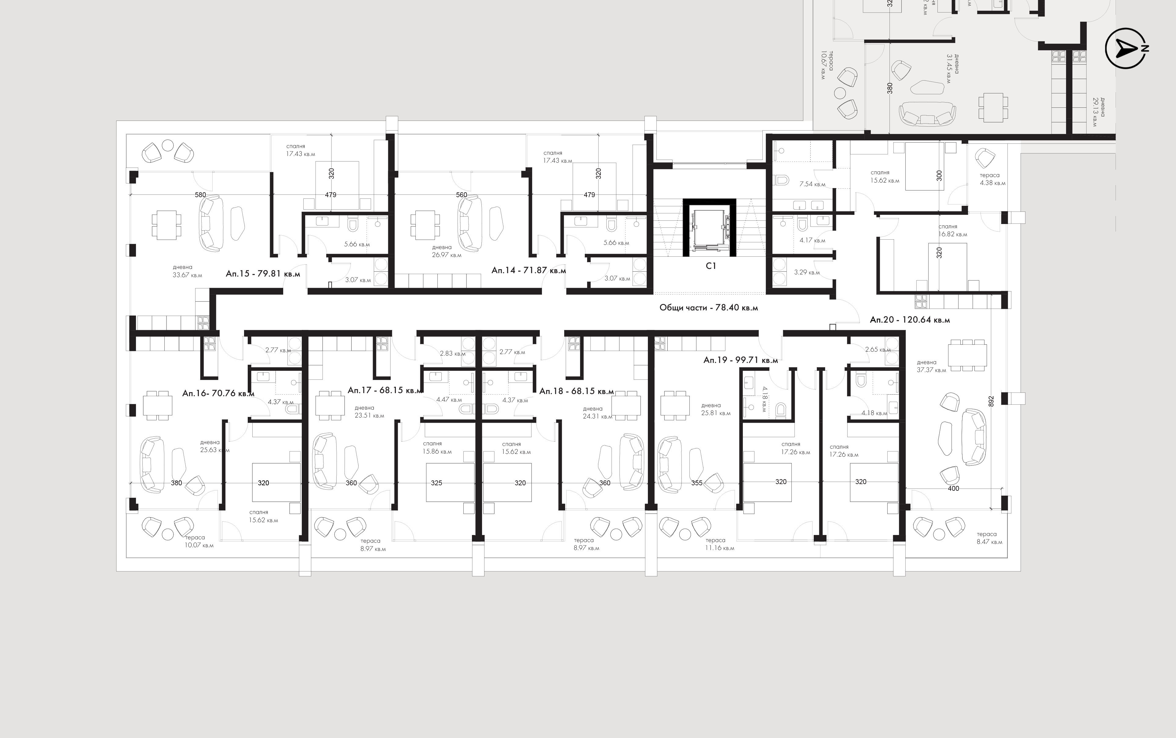
Сграда C1 - етаж 3
1 2 3 4 5 6

Имот
Статус
Квадратура
Апартамент 14
Свободен
81.48 м2
Апартамент 15
Свободен
90.49 м2
Апартамент 16
Свободен
80.22 м2
Апартамент 17
Свободен
77.27 м2
Апартамент 18
Свободен
77.27 м2
Апартамент 19
Свободен
113.05 м2
Апартамент 20
Свободен
136.78 м2
Виж всички свободни в сградата